Codice V000673 - APPARTAMENTO BILOCALE IN VENDITA
    A Villadossola, in posizione centralissima, direttamente sulla Piazza del Mercato e vicino a tutti i principali servizi, vendiamo appartamento bilocale sito al quinto piano di condominio con ascensore.
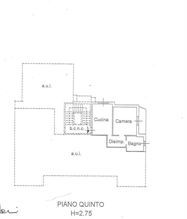
    L'appartamento si presenta in buono stato di manutenzione e risulta composto da ingresso su soggiorno con cucina a vista, disimpegno, camera da letto matrimoniale con balcone e bagno con vasca.
    Le spese condominiali ordinarie sono di circa 500 euro annui (esclusi i consumi di acqua e riscaldamento)
    L'immobile viene venduto completamente arredato.
    Valida soluzione sia come prima casa che come investimento.
    • Prezzo
      65.000 EUR
    • Spese condominiali
      500 EUR
    • Classe
      VA
    • Locali
      2
    • Metri quadri
      42
    • Stato Immobile
      Buono
    • Grado
      Medio
    • Posizione
      Centro
    • Panorama
      Vista Aperta
    • Piano
      Quinto
    • Orientamento
      Nord Ovest
    • Lati Liberi
      2
    • Giardino
      No
    • Arredi
      Arredato
    • Tipo Soggiorno
      Soggiorno
    • Tipo Cucina
      A Vista
    • Riscaldamento
      Conta Calorie
    • Tipo Riscaldam.
      Caldaia
    • Tipo Impianto
      Radiatori
    • Fonte Energetica
      Metano
    • Acqua Calda
      Autonoma
    • Infissi
      Legno
    • Serramenti
      Buono
    • Persiana
      Tapparella PVC
    • Pavim. Giorno
      Laminato
    • Pavim. Notte
      Laminato
    • Pavim. Cucina
      Laminato
    • Pavim. Bagno
      Ceramica
    • Accesso Disabili
      No
    • Accesso interno disabili
      Non accessibile
    • Isolamento
      Non presente
    • Isolamento termico
      Nessuno
    • Isolamento acustico
      Nessuno
    • Destinato a residenti
      Si
    • Via Roma 2, Villadossola (VB)