Codice V000703 - CASA INDIPENDENTE BIFAMILIARE CON GIARDINO IN VENDITA
    In Valle Anzasca, nel Comune di Calasca Castiglione, nella tranquilla e soleggiata Località Molini, vendiamo casa indipendente con giardino privato. L'immobile è attualmente suddiviso in due unità abitative site rispettivamente al primo e al secondo piano con ingressi indipendenti fra loro.
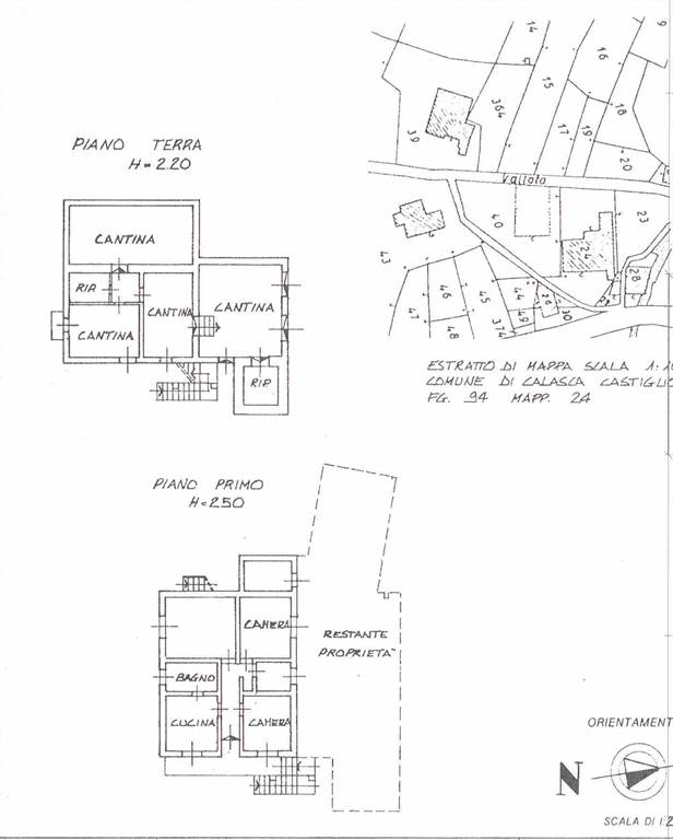
    Al primo piano troviamo appartamento composto da sala da pranzo con angolo cottura e stufa economica a legna, salotto, due camere da letto, bagno con doccia, disimpegno, locale caldaia e balcone. Il riscaldamento è autonomo con radiatori in ghisa (nuova caldaia a condensazione) e infissi in legno con doppio vetro.
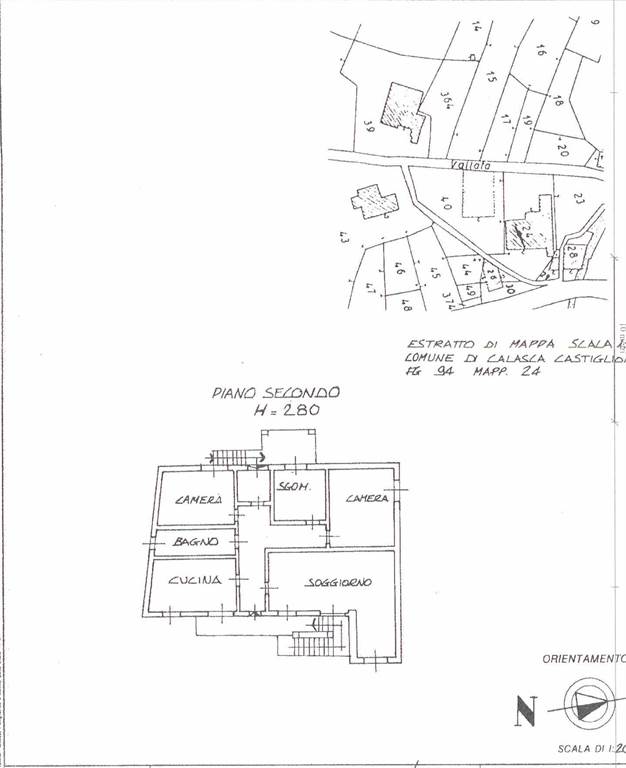
    Al secondo piano troviamo l'altro appartamento composto da cucina abitabile con mobili in legno su misura, spazioso soggiorno con camino, tre camere da letto, bagno con vasca, ampio disimpegno e locale caldaia esterno. Questo appartamento dispone di doppio ingresso: sia sul fronte della casa dal balcone sia sul retro dal terrazzino. Il riscaldamento è autonomo con radiatori in ghisa (caldaia non a condensazione) e infissi in legno vetro singolo. Completano la proprietà giardino che circonda la casa (in parte verde e in parte pavimentato), quattro cantine e due ripostigli al piano terra, fabbricato ad uso legnaia e fabbricato su tre livelli ad uso deposito sul retro della casa.
    L'immobile, a soli 14 km da Macugnaga con il suo Monte Rosa e impianti sciistici, si trova in una località tranquilla con panorami mozzafiato nota per essere un punto nevralgico della sentieristica, inclusa la Grande traversata delle Alpi.
    Possibilità di box auto doppio di 33 mq adiacente la casa ad Euro 20.000 e di terreni di circa 500 mq confinanti con l'immobile con quotazione a parte. Ottima soluzione sia come prima che come seconda casa.
    • Prezzo
      135.000 EUR
    • Classe
      G (458,89 [kWh/m²a])
    • Locali
      9
    • Metri quadri
      258
    • Mq Giardino
      50
    • Stato Immobile
      Buono
    • Grado
      Medio
    • Posizione
      Montagna
    • Panorama
      Vista Monti
    • Orientamento
      Nord Ovest Sud Est
    • Lati Liberi
      4
    • Giardino
      Privato
    • Arredi
      Semi Arredato
    • Tipo Soggiorno
      Soggiorno
    • Tipo Cucina
      Abitabile
    • Riscaldamento
      Autonomo
    • Tipo Riscaldam.
      Caldaia a Condensazione
    • Tipo Impianto
      Radiatori
    • Fonte Energetica
      Metano
    • Acqua Calda
      Autonoma
    • Infissi
      Legno Doppio Vetro
    • Serramenti
      Buono
    • Persiana
      Tapparella Legno
    • Pavim. Giorno
      Ceramica
    • Pavim. Notte
      Parquet
    • Pavim. Cucina
      Ceramica
    • Pavim. Bagno
      Ceramica
    • Isolamento termico
      Isolamento tetto/sottotetto
    • Località Molini 28, Calasca Castiglione (VB)