Code V000696 - DOPPELHAUSHÄLFTE MIT GARTEN ZU VERKAUFEN
    In der Gemeinde Borgomezzavalle, im Ortsteil Seppiana, zentral gelegen und in der Nähe aller wichtigen Einrichtungen, bieten wir ein dreigeschossiges Doppelhaus zum Verkauf an.
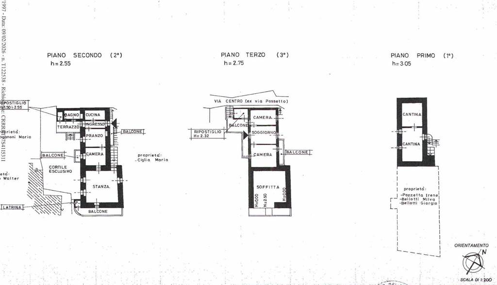
    Das Objekt ist derzeit als Einfamilienhaus eingetragen, kann aber in zwei separate Wohnungen aufgeteilt werden.
    Die Wohnung im ersten Obergeschoss verfügt über zwei Eingänge und besteht aus Eingangsbereich, Kochnische, Wohnzimmer, einem Schlafzimmer mit Westbalkon, einem großen Schlafzimmer mit Südbalkon, einem Abstellraum und einem Badezimmer mit Badewanne.
    Über eine Außentreppe gelangt man auf die Terrasse im zweiten Obergeschoss, von der aus man die zweite Wohnung erreicht. Diese umfasst eine Wohnküche, ein Wohnzimmer, ein Schlafzimmer mit Ost- und Westbalkon sowie einen Abstellraum, der in ein Badezimmer umgewandelt werden könnte.
    Zum Anwesen gehören außerdem ein Dachboden, zwei Kellerräume im Erdgeschoss und ein ca. 60 Quadratmeter großer privater Innenhof.
    Optional kann für zusätzliche 19.000 € ein zweistöckiges Anwesen mit Doppelgarage im Erdgeschoss, Abstellraum im Obergeschoss und ca. 50 m² angrenzendem Grundstück erworben werden.
    Von hier aus erreichen Sie in wenigen Kilometern den Naturpark Alta Valle Antrona mit seinen Seen sowie die anderen Täler der Ossola-Region, da Seppiana nur 5 km von Villadossola entfernt liegt.
    • Preis
      49.000 EUR
    • Energie-Nennleistung
      VA
    • Local
      6
    • Quadratmeter
      164
    • qm Garten
      60
    • Zustand Immobilie
      bewohnbar
    • Gesamteindruck
      mittelmäßig
    • Lage
      Gebirge
    • Ausblick
      Bergblick
    • Ausrichtung
      Osten Süden Westen
    • Freie Seiten
      3
    • Garten
      privat
    • Ausstattung
      möbliert
    • Wohnraum-Typologie
      Wohnzimmer
    • Küche
      Kochecke
    • Heizung
      autonom
    • Heizungsart
      Heizkessel
    • Heizungstyp
      Heizkörper
    • Energiequelle
      Erdgas
    • Warmwasser
      autonom
    • Tür/Fensterrahmen
      Holz
    • Türen / Fenster
      in recht gutem Zustand
    • Rollläden
      Holz
    • Boden Wohnraum
      Fliesen
    • Boden Zimmer
      Parkett
    • Boden Küche
      Fliesen
    • Boden Bad
      Fliesen
    • Via Seppiana 86, Borgomezzavalle (VB)